2075 QUAKER POINTE DRIVE
2075 QUAKER POINTE DRIVE QUAKERTOWN, PA 18951
Office
Industrial
Flex
Lease
Sale
Acreage 1.86 | 10,260 sq ft
Del Markward, SIOR
610.295.6603
610.295.6603
Dutch Markward
610.295.6610
610.295.6610
Location
Immediately off I-476 Northeast Extension - Quakertown exit (0.5 miles) .3 miles to WaWa, .4 miles to McDonald,s 1.5 miles to Quakertown Enter from Route 663, John Fries Highway
Zoning
Planned Commercial
Features
- Front of building parking; +/- 43 spaces | Additional side & rear parking
- One (1) drive-in dock door: 14’x14′
- Warehouse clear height: 16′
- Fenced yard – back and side of building
- HVAC-Warehouse | Two (2) mounted gas heaters, 4yrs. old
- Lighting – Office with drop ceiling and Warehouse has fluorescent lighting
- Smoke alarm system with fire protection – no sprinklers
- Roof – EPDM – Warehouse (10 years), Office (20-25 years)
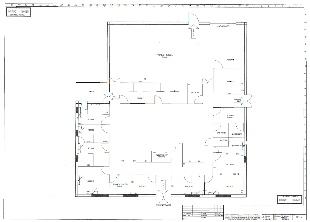
Floor plan
Broker
Del Markward, SIOR
Development / Investment / Retail
Del has owned and operated Markward Group, a real estate consulting, advisory, and brokerage firm since 1995. He has represented and transacted with some of the largest companies in the world, including Coca-Cola, Microsoft, GE, Chrysler, Pepsi, GM, Dun and Bradstreet, amongst others. Del also operates Caracor, LLC, a real estate development and investment firm, focused on mixed-use, industrial parks, and senior living projects. Del is on the Executive Board of Directors and the former (2018) Global President of SIOR (Society of Industrial and Office Realtors) a distinguished designee organization of affiliated professionals focused on maintaining the highest standards for commercial and industrial real estate globally.
Dutch Markward
Industrial
Dutch Markward is a Managing Director at Markward Group, where he focuses on industrial real estate throughout central and eastern Pennsylvania. Dutch brings a strong financial foundation from his prior experience in public accounting and consulting. After earning both his B.S. and Master’s in Accounting from Penn State University, he spent several years auditing public companies at EY before transitioning into accounting consulting. This background gives him a unique edge when advising clients, he approaches each transaction with a deep understanding of financial statements, operational efficiencies, and risk analysis.
Dutch is particularly focused on helping industrial users, owners, and investors navigate complex deals with clarity and confidence. His analytical mindset, paired with a growing command of the regional industrial market, allows him to deliver thoughtful, data-driven solutions. He’s also a digital native in many ways, comfortable leveraging technology for outreach, market insights, and deal marketing. Whether guiding clients through acquisition, disposition, or lease negotiations, Dutch combines financial insight with a relationship-first approach rooted in transparency and long-term thinking.







